At present, when people select equipment for container storage yards, Rubber Tyred Gantry Crane ( RTG) has become their first selection.
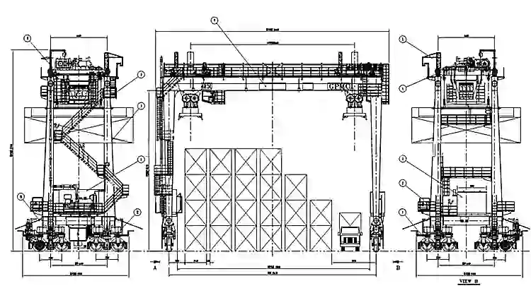
Nucleon Container Gantry Crane 45t is applicable to move, load and unload containers in rail station good yards, port, outside stores, etc. This type cranes use U frame, divedes into two types:
one is rail mounted gantry , the other is rubber tyre gantry crane . the clear space is bigger for containers move to sides. The whole crane moves on the rails mounted in ground or moves on the ground directly, more fast, more steady. Power supply is cable drum. The whole work duty is A6 and we can design non-standard according to your requirement.


The Rubber Tyre Container Gantry Crane is a highly versatile workhorse in the logistics and transportation industry. In bustling ports, it efficiently loads and unloads containers from ships onto trucks or trains, streamlining the transfer of goods between different modes of transport. Container yards rely on it to stack containers vertically, maximizing storage space.Gantry Crane Container.
Rubber Tyred Gantry Crane.RTG Container Crane.
Logistics hubs use this crane to move containers between storage areas and distribution points. Its rubber tyres enable smooth movement on various surfaces, reducing vibrations and wear. Whether handling standard - sized or oversized containers, this crane's lifting power and precise control make it indispensable for optimizing container handling operations in these dynamic industrial settings.